Site Navigation

G.M. Duggan's Resume
G.M. Duggan's Biography
Drafting and Design
Architectural Glossary
CONTACT INFO
gmduggan@yahoo.com

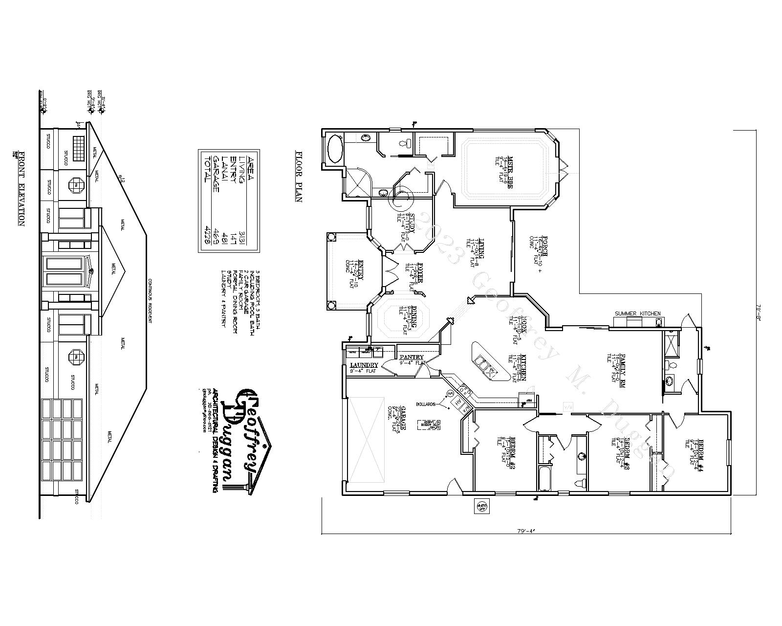
THE DELEON RESIDENCE

Larger Image
The Deleon Residence, to be built in Lehigh Acres, Florida, is a four Bedroom, three Bath, two car Garage Residence featuring a formal Dining Room, a Study, a Family Room,a Pool Bath, ample Porches and a Summer Kitchen. The cantilevered rear Porches provide unobstructed access to a courtyard that will house a pool, while providing shelter for seating and the Summer Kitchen with access from the Living Room, Family Room and Master Bedroom. The spacious Kitchen and Breakfast Nook features an island for serving and the Nook features a Butted Glass Bay Window for unobstructed view of the Pool's Courtyard. The Master Suite features His and Her Walk in Closets and His and Her Vanities, along with a soaking tub, a walk in shower, and water Closet. A Pantry and Laundry is provided conveniently near the Kitchen and provides access from the Garage.

The Deleon Residence shall be constructed of 8" reinforced CMU Concrete walls and pre-engineered wood trusses. This structure is well designed to withstand any Hurricane that may affect Lehigh Acres.