Site Navigation

G.M. Duggan's Resume
G.M. Duggan's Biography
Drafting and Design
About the Plans
Architectural Glossary
CONTACT INFO
gmduggan@yahoo.com

PAYMENT METHODS
ZELLE
To either my cell phone or to my email

Or by regular check
contact me for details

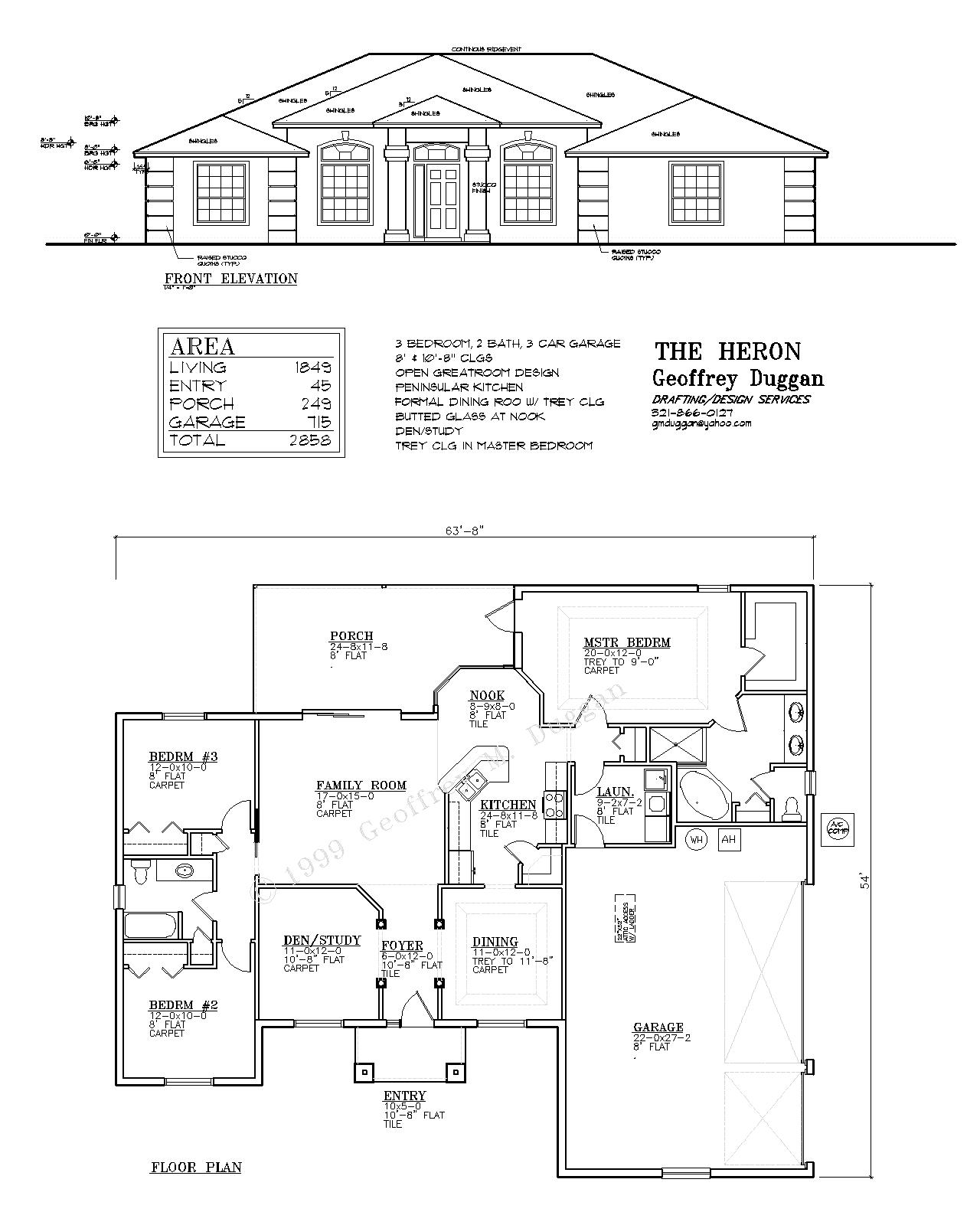
The Heron

Larger Image
The Heron is a three Bedroom, two Bath, Three car Garage single story residence with 1849 sf living and 2858 sf total, designed for the Central Florida market. The Heron features an open Great Room design, a penisular Kitchen, a Formal Dining Room with a Trey Ceiling, a Study, an inviting Entry Porch, and a spacious Rear Porch for relaxing. The Guest Bathroom doubles as a Pool Bath. The Master Bath Features a Walk in Closest, a soaking tub, a walk in shower, and a Water Closet. The Heron is designed to be constructed of 8" CMU reinforced concrete walls and pre-engineered wood trusses.

You may purchase this plan, Architecturals only, for: $858.00

You may purchase this plan and my services to bring it to permit ready on your for your property for: $2858.00
All plans delivered as PDF file format via Email
Engineer's Review, Sign & Seal fee is charged seperately